Restaurant – Chez Guo
Restaurant
Chez Guo
Concept
Découvrez un voyage gastronomique exquis
Chez Guo.
Chez Guo vous invite à un voyage gastronomique exceptionnel, vous plongeant dans les délices raffinés de la cuisine chinoise. Notre établissement, membre éminent de l’Académie Culinaire de France, est situé à Noisy-le-Grand.
Laissez-vous tenter par notre spécialité de canard laqué, préparée avec expertise, et plongez-vous dans un décor subtilement imprégné de l’élégance asiatique.
Missions Alpha
Mission maitrise d’œuvre globale
(conception, autorisation de travaux,
suivi de chantier)
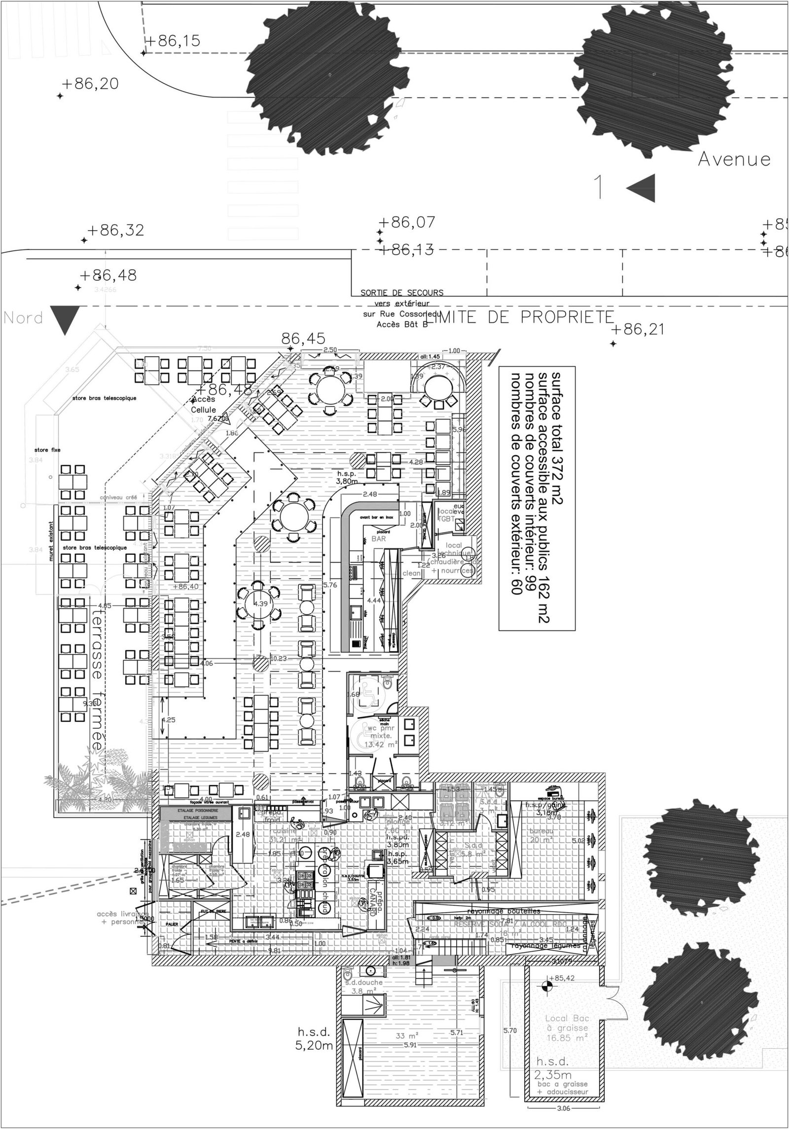
Surface totale
000 m² intérieur
Durée des travaux
3 mois
Site internet
www.chezguo.fr
Plan
















